<< Home Page | << Management Plan Page

Safety Improvements Troopers Hill Road

Work to slow traffic on Troopers Hill Road and to make in safer for pedestrians using the entrances to the Hill was carried out in December 2018 & January 2019.

Safety of pedestrians using the entrances to the Hill from Troopers Hill Road had been a concern of local residents for many years, particularly due to poor visibility for those leaving the site. Work to improve the entrance at Greendown was carried out in 2009.

The Council have now constructed build-outs to give short lengths of footway on the Hill side of the road at the two entrance locations with the worst visability.

The work also included improved pedestrian crossing points near the entrance to the Hill at the junction of Greendown and Troopers Hill Road. At the same time they constructed other safety & speed reducing measures on Troopers Hill Road - speed cushions and a speed table.

Bristol City Council initially consulted on a scheme to introduce these measures in 2015, this moved on to a formal consultation in 2016 on the required 'Traffic Regulation Orders' (TRO).

Following a further formal consultation on a reduced number of road humps in April 2017, construction was expected later in 2017 but did not actually start until 10th December 2018; after a break over Christmas work was completed on 22nd January 2019. There were some road closures during w/c 14th January.

The Traffic Regulation Orders became operative on the 30th November 2018, following the publication of a public Notice in the ‘Bristol Post’ on 10th October 2018.

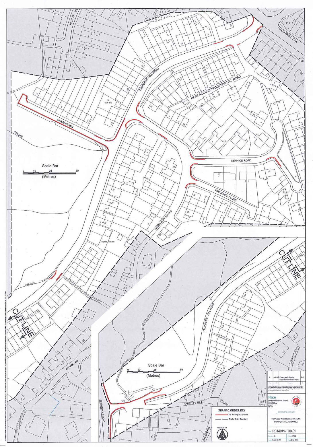
The two plans below show the works that were constructed

Troopers Hill Road Road Humps, Final Plan - Troopers Hill Road Buildouts & Parking Restrictions, Final Plan

Works Design - finalised April 2017

The final scheme included some changes from the scheme consulted on in 2016 (see below). The changes were partly as a result of budget limitations and partly as a result of objections received.

There are two parts to the scheme - road humps and buildouts / parking restrictions.

Road Humps

A second formal consultation on the required 'Traffic Regulation Order' (TRO) for the reduced speed humps was run from Thursday 6th April to Friday 28 April 2017 on the Council's website at www.bristol.gov.uk/trafficorders

Revised TRO April 17 documents for road humps - Notice - Statement of Reasons - Plan - these show the final plan for road humps.

Changes to road humps announced in February 2017 and included in the above plans:

• Near 81 Troopers Hill Rd, a colour change will be used to mark the crossing instead of a speed hump. The new footway construction with drop kerbs opposite the houses will still be constructed to give people somewhere to stand off the road when waiting to cross.

• Speed cushions to be installed at the Greendown junction instead of a speed table (the budget would not cover a speed table).

Buildouts & Parking Restrictions

Buildouts do not require a formal TRO but the locations can be seen on the drawings issued for the parking regulations. Because the changes in April 2017 were only to remove or reduce the size of the buildouts, only minor modifications were needed to the TRO so there was no further formal consultation. A report was produced outlining the changes and the reasons for them. The report included a plan of the revised proposals. You can download the whole report or just the final plan from the links below.

TRO decision report dated 12th Sept 2017 - Plan: Troopers Hill Road Parking Restrictions, Final

The main changes covered in the report and announced in February 2017 were:

• Slight reductions in the size of the buildouts at the southern end of Troopers Hill Rd to reduce costs.

• No narrowing near the top of the road due to limited budget.

• No buildout opposite 111 Troopers Hill Rd - this entrance has the best visibility and the number of drop kerbs to driveways makes design of suitable measures difficult.

Traffic Regulation Order Consultation - October/November 2016

Plans for the scheme as published for the necessary 'Traffic Regulation Orders' (TRO) can be seen via the links below. These plans and details of how to respond to the formal consultation were published on the Council's website at www.bristol.gov.uk/trafficorders from Thursday 27 October to Friday 18 November 2016.

There were three separate sections to the TRO - parts A, B & C. For Troopers Hill Road part A was for parking restrictions and part C was for speed humps etc, you need to look at both to get the full picture. Part B was for other parking restrictions in around the Kingsway.

Part A parking restrictions - Notice - Statement of Reasons - Plan (see also 2017 changes above)
Part C speed humps etc - Notice - Statement of Reasons - Plan (see also 2017 changes above)

Initial Consultation - October 2015

You can see the October 2015 proposals on the consultation leaflet, copies of which were delivered to houses on Troopers Hill Road. Note the details of some of the proposals have now been changed from those shown on the leaflet.

Funding - September 2012

Funding for this scheme is from the Local Sustainable Transport Fund and was awarded in September 2012 following an application by members of the St George Neighbourhood Partnership Traffic & Transport sub-group in July 2012 which was supported by Friends of Troopers Hill.

<< Home Page | << Management Plan Page


Friends of Troopers Hill
Visit the Friends of Troopers Hill website at

www.troopers-hill.org.uk